新潟市西区寺尾の『福寿興産』です(^-^)/ アパート・マンション・土地建物など最新の不動産物件情報をご紹介!!
×
[PR]上記の広告は3ヶ月以上新規記事投稿のないブログに表示されています。新しい記事を書く事で広告が消えます。
こんにちは(^O^)
本日は【新潟市西区五十嵐中島3 4LDK 貸家】のご案内です!
<五十嵐中島3 貸家>
新潟市西区五十嵐中島3-22-24-1
木造瓦葺2階建て
平成8年7月築
西内野小学校/内野中学校区
平成21年4月上旬より入居可能!
4LDK[1F:LDK24・洋10 2F:洋6・洋6・洋8]
都市ガス・バス(追い焚き付)・給湯・エアコン3台・洗面化粧台・
パネルヒーター(全館)・トイレ2ヶ所(ウォシュレット付)・
システムキッチン・ウッドデッキ・バルコニーなど
静かな住宅街の中に立地する物件です(^o^)
広いお庭にウッドデッキ。お洒落な貸家ですヨ(*^^)v
賃料:75,000円
敷金1ヶ月、礼金1ヶ月、管理費込み、駐車2台込み
内覧も可能です!
お問い合わせは TEL 025-267-6870 or info@fukuju-kosan.co.jp まで!
詳細は福寿興産ホームページでどうぞ!
http://www.fukuju-kosan.co.jp/cgi-bin/estate/search/search.cgi?mode=view&num=442
大きな地図で見る
(有)福寿興産
新潟市西区寺尾2番6号
http://www.fukuju-kosan.co.jp/
http://ameblo.jp/fukujukosan/
info@fukuju-kosan.co.jp
025-267-6870
025-233-3753(fax)
新潟市の賃貸売買情報をご紹介。
アパートマンション土地建物など不動産の事なら福寿興産へご相談下さい!
本日は【新潟市西区五十嵐中島3 4LDK 貸家】のご案内です!
新潟市西区五十嵐中島3-22-24-1
木造瓦葺2階建て
平成8年7月築
西内野小学校/内野中学校区
平成21年4月上旬より入居可能!
都市ガス・バス(追い焚き付)・給湯・エアコン3台・洗面化粧台・
パネルヒーター(全館)・トイレ2ヶ所(ウォシュレット付)・
システムキッチン・ウッドデッキ・バルコニーなど
静かな住宅街の中に立地する物件です(^o^)
広いお庭にウッドデッキ。お洒落な貸家ですヨ(*^^)v
賃料:75,000円
敷金1ヶ月、礼金1ヶ月、管理費込み、駐車2台込み
内覧も可能です!
お問い合わせは TEL 025-267-6870 or info@fukuju-kosan.co.jp まで!
詳細は福寿興産ホームページでどうぞ!
http://www.fukuju-kosan.co.jp/cgi-bin/estate/search/search.cgi?mode=view&num=442
大きな地図で見る
(有)福寿興産
新潟市西区寺尾2番6号
http://www.fukuju-kosan.co.jp/
http://ameblo.jp/fukujukosan/
info@fukuju-kosan.co.jp
025-267-6870
025-233-3753(fax)
新潟市の賃貸売買情報をご紹介。
アパートマンション土地建物など不動産の事なら福寿興産へご相談下さい!
PR
こんにちは(^O^)
【新潟市西区山田 3LDK アパート】のご案内です!!
<シャンドフレール黒崎D 102号室>
新潟市西区山田2806-1
軽量鉄骨造2階建て
平成9年9月築
山田小学校・黒崎中学校区
3LDK[和6・洋6・洋7.5・LDK9] 70.16㎡
エアコン・BSアンテナ・インターホン・駐輪場・シューズボックス・
洗面台・暖房便座・バルコニー・居室照明・Bフレッツマンションタイプ対応
山田小学校まで100mのダイワハウス施工物件!
大型スーパーなども近く、室内の広々とした物件となっています(^o^)/
賃料:62,000円
敷金2ヶ月、礼金なし、共益費3,000円、駐車1台込み
詳細は福寿興産ホームページでご覧下さい。
http://www.fukuju-kosan.co.jp/cgi-bin/estate/search/search.cgi?mode=view&num=441
お問い合わせは TEL 025-267-6870 or info@fukuju-kosan.co.jp
大きな地図で見る
(有)福寿興産
新潟市西区寺尾2番6号
http://www.fukuju-kosan.co.jp/
http://ameblo.jp/fukujukosan/
info@fukuju-kosan.co.jp
025-267-6870
025-233-3753(fax)
新潟市の賃貸売買情報をご紹介。
アパートマンション土地建物など不動産の事なら福寿興産へご相談下さい!
【新潟市西区山田 3LDK アパート】のご案内です!!
新潟市西区山田2806-1
軽量鉄骨造2階建て
平成9年9月築
山田小学校・黒崎中学校区
3LDK[和6・洋6・洋7.5・LDK9] 70.16㎡
洗面台・暖房便座・バルコニー・居室照明・Bフレッツマンションタイプ対応
山田小学校まで100mのダイワハウス施工物件!
大型スーパーなども近く、室内の広々とした物件となっています(^o^)/
賃料:62,000円
敷金2ヶ月、礼金なし、共益費3,000円、駐車1台込み
詳細は福寿興産ホームページでご覧下さい。
http://www.fukuju-kosan.co.jp/cgi-bin/estate/search/search.cgi?mode=view&num=441
お問い合わせは TEL 025-267-6870 or info@fukuju-kosan.co.jp
大きな地図で見る
(有)福寿興産
新潟市西区寺尾2番6号
http://www.fukuju-kosan.co.jp/
http://ameblo.jp/fukujukosan/
info@fukuju-kosan.co.jp
025-267-6870
025-233-3753(fax)
新潟市の賃貸売買情報をご紹介。
アパートマンション土地建物など不動産の事なら福寿興産へご相談下さい!
こんにちは(^O^)
本日は【新潟市西区西小針台2 アパート】のご紹介(^◇^)
<CREST西小針台>
新潟市西区西小針台2-4-17
軽量鉄骨造2階建て
平成15年8月築
真砂小学校/五十嵐中学校区
エアコン・ウォシュレット付トイレ・TV付インターホン・
シャッター雨戸・シャンプードレッサー・床下収納・
BSアンテナ・シューズボックス・室内物干・オートロック
西大通り近くの物件です(^o^)スーパー(チャレンジャー)も近いですよ~( ^^)v
詳細は福寿興産ホームページでどうぞ!!
101号:http://www.fukuju-kosan.co.jp/cgi-bin/estate/search/search.cgi?mode=view&num=439
202号:http://www.fukuju-kosan.co.jp/cgi-bin/estate/search/search.cgi?mode=view&num=440
①202号室 1R[洋室11.5帖] 29.44㎡
賃料:51,000円
敷金1ヶ月、礼金1ヶ月、共益費3,000円、駐車1台込
②101号室 1LDK[洋室7.5帖、LDK9] 37.78㎡
賃料:55,000円
敷金1ヶ月、礼金1ヶ月、共益費3,000円、駐車1台込
大きな地図で見る
(有)福寿興産
新潟市西区寺尾2番6号
http://www.fukuju-kosan.co.jp/
http://ameblo.jp/fukujukosan/
info@fukuju-kosan.co.jp
025-267-6870
025-233-3753(fax)
新潟市の賃貸売買情報をご紹介。
アパートマンション土地建物など不動産の事なら福寿興産へご相談下さい!
本日は【新潟市西区西小針台2 アパート】のご紹介(^◇^)
新潟市西区西小針台2-4-17
軽量鉄骨造2階建て
平成15年8月築
真砂小学校/五十嵐中学校区
エアコン・ウォシュレット付トイレ・TV付インターホン・
シャッター雨戸・シャンプードレッサー・床下収納・
BSアンテナ・シューズボックス・室内物干・オートロック
西大通り近くの物件です(^o^)スーパー(チャレンジャー)も近いですよ~( ^^)v
詳細は福寿興産ホームページでどうぞ!!
101号:http://www.fukuju-kosan.co.jp/cgi-bin/estate/search/search.cgi?mode=view&num=439
202号:http://www.fukuju-kosan.co.jp/cgi-bin/estate/search/search.cgi?mode=view&num=440
①202号室 1R[洋室11.5帖] 29.44㎡
賃料:51,000円
敷金1ヶ月、礼金1ヶ月、共益費3,000円、駐車1台込
②101号室 1LDK[洋室7.5帖、LDK9] 37.78㎡
賃料:55,000円
敷金1ヶ月、礼金1ヶ月、共益費3,000円、駐車1台込
大きな地図で見る
(有)福寿興産
新潟市西区寺尾2番6号
http://www.fukuju-kosan.co.jp/
http://ameblo.jp/fukujukosan/
info@fukuju-kosan.co.jp
025-267-6870
025-233-3753(fax)
新潟市の賃貸売買情報をご紹介。
アパートマンション土地建物など不動産の事なら福寿興産へご相談下さい!
こんにちは(^O^)
本日は【新潟市西区新通西2 1DK アパート】のご紹介です!
<フラッツ槙尾 105号室>
新潟市西区新通西2-26-22
軽量鉄骨造2階建て
平成19年10月築
JR越後線 新潟大学前駅 徒歩15分
平成21年3月初旬より入居可能
1DK[ 洋室3帖・DK7.5 ]
プロパンガス・エアコン・ウォシュレット付トイレ・TV付インターホン・
カードキー・追焚き給湯・IHヒーター(2口)・シャンプードレッサー・
床下収納・BSアンテナ・シューズボックス・デジタル放送対応・
室内物干・ピクチャーレール・Bフレッツマンションタイプ対応
賃料:49,000円
敷金1ヶ月、礼金1ヶ月、管理費・共益費2,000円、駐車1台込
設備の充実したダイワハウス物件です(^o^)
大型ショッピングセンター・信楽園病院・槙尾ゆったり苑近く。
詳細は福寿興産ホームページでどうぞ!
http://www.fukuju-kosan.co.jp/cgi-bin/estate/search/search.cgi?mode=view&num=437
大きな地図で見る
(有)福寿興産
新潟市西区寺尾2番6号
http://www.fukuju-kosan.co.jp/
http://ameblo.jp/fukujukosan/
info@fukuju-kosan.co.jp
025-267-6870
025-233-3753(fax)
新潟市の賃貸売買情報をご紹介。
アパートマンション土地建物など不動産の事なら福寿興産へご相談下さい!
本日は【新潟市西区新通西2 1DK アパート】のご紹介です!
新潟市西区新通西2-26-22
軽量鉄骨造2階建て
平成19年10月築
JR越後線 新潟大学前駅 徒歩15分
平成21年3月初旬より入居可能
プロパンガス・エアコン・ウォシュレット付トイレ・TV付インターホン・
カードキー・追焚き給湯・IHヒーター(2口)・シャンプードレッサー・
床下収納・BSアンテナ・シューズボックス・デジタル放送対応・
室内物干・ピクチャーレール・Bフレッツマンションタイプ対応
賃料:49,000円
敷金1ヶ月、礼金1ヶ月、管理費・共益費2,000円、駐車1台込
設備の充実したダイワハウス物件です(^o^)
大型ショッピングセンター・信楽園病院・槙尾ゆったり苑近く。
詳細は福寿興産ホームページでどうぞ!
http://www.fukuju-kosan.co.jp/cgi-bin/estate/search/search.cgi?mode=view&num=437
大きな地図で見る
(有)福寿興産
新潟市西区寺尾2番6号
http://www.fukuju-kosan.co.jp/
http://ameblo.jp/fukujukosan/
info@fukuju-kosan.co.jp
025-267-6870
025-233-3753(fax)
新潟市の賃貸売買情報をご紹介。
アパートマンション土地建物など不動産の事なら福寿興産へご相談下さい!
こんにちは(^O^)
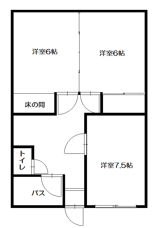
本日は【新潟市西区寺尾 3K アパート】のご紹介です!
<コスモ寺尾>
新潟市西区寺尾1-1-13
木造瓦葺2階建て
平成2年3月築
坂井輪小学校/小新中学校区
バス 西郵便局前 徒歩1分
3K[洋室6帖・洋室6帖・洋室7.5帖・キッチン]
プロパンガス・バス(シャワー付)・給湯・洋式トイレ・駐車1台込
賃料:35,000円
敷金1ヶ月、礼金なし、管理費込み、駐車1台込
室内広々、お手頃家賃の物件が登場です!
新潟西郵便局近く。スーパーなども近いですよ(^O^)
詳細は福寿興産ホームページでどうぞ!
http://www.fukuju-kosan.co.jp/cgi-bin/estate/search/search.cgi?mode=view&num=435
大きな地図で見る
(有)福寿興産
新潟市西区寺尾2番6号
http://www.fukuju-kosan.co.jp/
http://ameblo.jp/fukujukosan/
info@fukuju-kosan.co.jp
025-267-6870
025-233-3753(fax)
新潟市の賃貸売買情報をご紹介。
アパートマンション土地建物など不動産の事なら福寿興産へご相談下さい!
本日は【新潟市西区寺尾 3K アパート】のご紹介です!
新潟市西区寺尾1-1-13
木造瓦葺2階建て
平成2年3月築
坂井輪小学校/小新中学校区
バス 西郵便局前 徒歩1分
プロパンガス・バス(シャワー付)・給湯・洋式トイレ・駐車1台込
賃料:35,000円
敷金1ヶ月、礼金なし、管理費込み、駐車1台込
室内広々、お手頃家賃の物件が登場です!
新潟西郵便局近く。スーパーなども近いですよ(^O^)
詳細は福寿興産ホームページでどうぞ!
http://www.fukuju-kosan.co.jp/cgi-bin/estate/search/search.cgi?mode=view&num=435
大きな地図で見る
(有)福寿興産
新潟市西区寺尾2番6号
http://www.fukuju-kosan.co.jp/
http://ameblo.jp/fukujukosan/
info@fukuju-kosan.co.jp
025-267-6870
025-233-3753(fax)
新潟市の賃貸売買情報をご紹介。
アパートマンション土地建物など不動産の事なら福寿興産へご相談下さい!
カレンダー
| 12 | 2026/01 | 02 |
| S | M | T | W | T | F | S |
|---|---|---|---|---|---|---|
| 1 | 2 | 3 | ||||
| 4 | 5 | 6 | 7 | 8 | 9 | 10 |
| 11 | 12 | 13 | 14 | 15 | 16 | 17 |
| 18 | 19 | 20 | 21 | 22 | 23 | 24 |
| 25 | 26 | 27 | 28 | 29 | 30 | 31 |
プロフィール
HN:
【 株式会社 福寿興産 】
HP:
性別:
非公開
自己紹介:
新潟市西区寺尾の不動産屋です。アパートマンション土地建物など新潟市西区の不動産の事なら当社におまかせ下さい!!
〒950-2052
新潟市西区寺尾2番6号
TEL 025-267-6870
FAX 025-233-3753
メールはこちらから!
----------------------
----------------------
メルマガはこちらから
〒950-2052
新潟市西区寺尾2番6号
TEL 025-267-6870
FAX 025-233-3753
メールはこちらから!
----------------------
----------------------
メルマガはこちらから
ブログ内検索