新潟市西区寺尾の『福寿興産』です(^-^)/ アパート・マンション・土地建物など最新の不動産物件情報をご紹介!!
×
[PR]上記の広告は3ヶ月以上新規記事投稿のないブログに表示されています。新しい記事を書く事で広告が消えます。
こんにちは(^O^)/
本日は、新潟サティ近く、小新インターすぐそばの物件をご紹介します!
【新潟市西区小新南1 1LDK アパート アトリオ小新B 201号室】
★ アトリオ小新B201号室 ★
新潟市西区小新南1丁目14-18
軽量鉄骨造2階建て
2007年6月築
坂井輪小学校/小新中学校
新潟サティ・小新インター近く
1LDK[洋室6帖、LDK11]
エアコン・温水洗浄便座・TV付インターホン・
対面キッチン・カードキー・追焚き・給湯・
シャンプードレッサー・BSアンテナ・駐輪場・
クローゼット・シューズボックス・デジタル放送対応・
都市ガス・バルコニー・居室照明・室内物干・
浄水機能付混合水栓
(カートリッジ1,000円/月のリース契約をしていただくと、
浄水器としてご利用になれます。※4ヶ月に1回交換)
賃料:61,000円
敷金1ヵ月、礼金1ヵ月、共益費2,000円、駐車1台込み(2台目3,000円)
お問い合わせはTEL(025-267-6870)またはメールで!!
詳細は福寿興産ホームページでどうぞ!
http://www.fukuju-kosan.co.jp/cgi-bin/estate/search/search.cgi?mode=view&num=419
大きな地図で見る
(有)福寿興産
新潟市西区寺尾2番6号
http://www.fukuju-kosan.co.jp/
http://ameblo.jp/fukujukosan/(ブログ→物件の情報ではないですが…)
info@fukuju-kosan.co.jp
025-267-6870
025-233-3753(fax)
新潟市の賃貸売買情報をご紹介。
アパートマンション土地建物など不動産の事なら福寿興産へご相談下さい!
本日は、新潟サティ近く、小新インターすぐそばの物件をご紹介します!
【新潟市西区小新南1 1LDK アパート アトリオ小新B 201号室】
新潟市西区小新南1丁目14-18
軽量鉄骨造2階建て
2007年6月築
坂井輪小学校/小新中学校
新潟サティ・小新インター近く
エアコン・温水洗浄便座・TV付インターホン・
対面キッチン・カードキー・追焚き・給湯・
シャンプードレッサー・BSアンテナ・駐輪場・
クローゼット・シューズボックス・デジタル放送対応・
都市ガス・バルコニー・居室照明・室内物干・
浄水機能付混合水栓
(カートリッジ1,000円/月のリース契約をしていただくと、
浄水器としてご利用になれます。※4ヶ月に1回交換)
賃料:61,000円
敷金1ヵ月、礼金1ヵ月、共益費2,000円、駐車1台込み(2台目3,000円)
お問い合わせはTEL(025-267-6870)またはメールで!!
詳細は福寿興産ホームページでどうぞ!
http://www.fukuju-kosan.co.jp/cgi-bin/estate/search/search.cgi?mode=view&num=419
大きな地図で見る
(有)福寿興産
新潟市西区寺尾2番6号
http://www.fukuju-kosan.co.jp/
http://ameblo.jp/fukujukosan/(ブログ→物件の情報ではないですが…)
info@fukuju-kosan.co.jp
025-267-6870
025-233-3753(fax)
新潟市の賃貸売買情報をご紹介。
アパートマンション土地建物など不動産の事なら福寿興産へご相談下さい!
PR
こんにちは(^ ^)
最近暖かい日が続いています(^.^)
過ごしやすい陽気ですが、週末はまた冷え込むようです!
体調管理は万全に(^ ^)
本日は【新潟市西区ときめき東1 1LDK アパート】のご紹介です!
<セブンワンテンF 205号室>
新潟市西区ときめき東1-6-9
軽量鉄骨造3階建て
平成16年10月築
山田小学校/黒崎中・小針中
平成20年12月下旬より入居可能
1LDK[洋室6帖、LDK11]
【設備】エアコン・温水洗浄便座・TV付インターホン・
対面キッチン・シャンプードレッサー・BSアンテナ・
電気調理器・オール電化・駐輪場・クローゼット・
フローリング・シューズボックス・バルコニー・居室照明・
ウォークインクローゼット
賃料:60,000円
敷金2ヵ月、礼金なし、共益費3,000円、駐車1台込み
1LDKのオール電化物件(^^)設備も充実していますよ~!
詳細は福寿興産ホームページでどうぞ(^ ^)/
http://www.fukuju-kosan.co.jp/cgi-bin/estate/search/search.cgi?mode=view&num=418
お問い合わせはTEL(025-267-6870)またはメールでどうぞ!!
大きな地図で見る
(有)福寿興産
新潟市西区寺尾2番6号
http://www.fukuju-kosan.co.jp/
http://ameblo.jp/fukujukosan/(ブログ→物件の情報ではないですが…)
info@fukuju-kosan.co.jp
025-267-6870
025-233-3753(fax)
新潟市の賃貸売買情報をご紹介。
アパートマンション土地建物など不動産の事なら福寿興産へご相談下さい!
最近暖かい日が続いています(^.^)
過ごしやすい陽気ですが、週末はまた冷え込むようです!
体調管理は万全に(^ ^)
本日は【新潟市西区ときめき東1 1LDK アパート】のご紹介です!
新潟市西区ときめき東1-6-9
軽量鉄骨造3階建て
平成16年10月築
山田小学校/黒崎中・小針中
平成20年12月下旬より入居可能
【設備】エアコン・温水洗浄便座・TV付インターホン・
対面キッチン・シャンプードレッサー・BSアンテナ・
電気調理器・オール電化・駐輪場・クローゼット・
フローリング・シューズボックス・バルコニー・居室照明・
ウォークインクローゼット
賃料:60,000円
敷金2ヵ月、礼金なし、共益費3,000円、駐車1台込み
1LDKのオール電化物件(^^)設備も充実していますよ~!
詳細は福寿興産ホームページでどうぞ(^ ^)/
http://www.fukuju-kosan.co.jp/cgi-bin/estate/search/search.cgi?mode=view&num=418
お問い合わせはTEL(025-267-6870)またはメールでどうぞ!!
大きな地図で見る
(有)福寿興産
新潟市西区寺尾2番6号
http://www.fukuju-kosan.co.jp/
http://ameblo.jp/fukujukosan/(ブログ→物件の情報ではないですが…)
info@fukuju-kosan.co.jp
025-267-6870
025-233-3753(fax)
新潟市の賃貸売買情報をご紹介。
アパートマンション土地建物など不動産の事なら福寿興産へご相談下さい!
こんにちは(^.^)
本日は【新潟市西区寺尾東3 3DK アパート】のご紹介です!


<和晃ハイツ>
新潟市西区寺尾東3-14-28
木造瓦葺2階建て
昭和61年築
坂井東小学校/坂井輪中学校区
3DK [約33.12㎡ 和室7帖、和室8帖、洋室4.5帖、DK]
賃料:50,000円
敷金1ヵ月、礼金なし、管理費込み、駐車1台込み
都市ガス・バス・洋式トイレ・エアコン・下駄箱
新潟西区役所近く。賃料のお手頃な3DK物件です(^.^)/
詳細は福寿興産ホームページでどうぞ!
http://www.fukuju-kosan.co.jp/cgi-bin/estate/search/search.cgi?mode=view&num=417
大きな地図で見る
(有)福寿興産
新潟市西区寺尾2番6号
http://www.fukuju-kosan.co.jp/
http://ameblo.jp/fukujukosan/(ブログ→物件の情報ではないですが…)
info@fukuju-kosan.co.jp
025-267-6870
025-233-3753(fax)
新潟市の賃貸売買情報をご紹介。
アパートマンション土地建物など不動産の事なら福寿興産へご相談下さい!
本日は【新潟市西区寺尾東3 3DK アパート】のご紹介です!
<和晃ハイツ>
新潟市西区寺尾東3-14-28
木造瓦葺2階建て
昭和61年築
坂井東小学校/坂井輪中学校区
3DK [約33.12㎡ 和室7帖、和室8帖、洋室4.5帖、DK]
賃料:50,000円
敷金1ヵ月、礼金なし、管理費込み、駐車1台込み
都市ガス・バス・洋式トイレ・エアコン・下駄箱
新潟西区役所近く。賃料のお手頃な3DK物件です(^.^)/
詳細は福寿興産ホームページでどうぞ!
http://www.fukuju-kosan.co.jp/cgi-bin/estate/search/search.cgi?mode=view&num=417
大きな地図で見る
(有)福寿興産
新潟市西区寺尾2番6号
http://www.fukuju-kosan.co.jp/
http://ameblo.jp/fukujukosan/(ブログ→物件の情報ではないですが…)
info@fukuju-kosan.co.jp
025-267-6870
025-233-3753(fax)
新潟市の賃貸売買情報をご紹介。
アパートマンション土地建物など不動産の事なら福寿興産へご相談下さい!
こんにちは(^O^)
本日は【新潟市西区新通西2 1DK アパート】のご紹介です(^.^)
<グリーンパーク>
新潟市西区新通西2-14-3
鉄骨造2階建て
平成16年4月築
賃料:47,000円
敷金1ヵ月、礼金1ヵ月、共益費2,000円、駐車1台込み
1DK 約33.12㎡
洋室10帖、DK4.5
プロパンガス・追焚きバス・ウォシュレット付トイレ・エアコン・
シャンプードレッサー・BS対応・バルコニー
信楽園病院・原信新通店近く
詳細は福寿興産ホームページでご覧ください(^.^)/
大きな地図で見る
(有)福寿興産
新潟市西区寺尾2番6号
http://www.fukuju-kosan.co.jp/
http://ameblo.jp/fukujukosan/(ブログ→物件の情報ではないですが…)
info@fukuju-kosan.co.jp
025-267-6870
025-233-3753(fax)
新潟市の賃貸売買情報をご紹介。
アパートマンション土地建物など不動産の事なら福寿興産へご相談下さい!
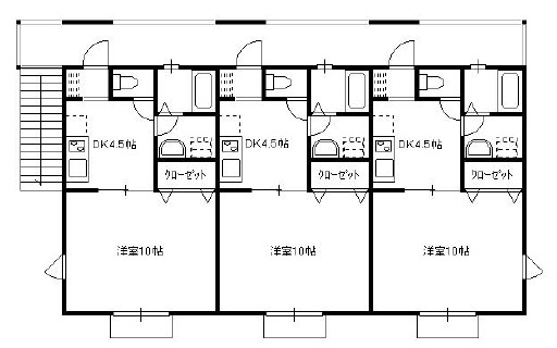
本日は【新潟市西区新通西2 1DK アパート】のご紹介です(^.^)
新潟市西区新通西2-14-3
鉄骨造2階建て
平成16年4月築
賃料:47,000円
敷金1ヵ月、礼金1ヵ月、共益費2,000円、駐車1台込み
洋室10帖、DK4.5
プロパンガス・追焚きバス・ウォシュレット付トイレ・エアコン・
シャンプードレッサー・BS対応・バルコニー
信楽園病院・原信新通店近く
詳細は福寿興産ホームページでご覧ください(^.^)/
大きな地図で見る
(有)福寿興産
新潟市西区寺尾2番6号
http://www.fukuju-kosan.co.jp/
http://ameblo.jp/fukujukosan/(ブログ→物件の情報ではないですが…)
info@fukuju-kosan.co.jp
025-267-6870
025-233-3753(fax)
新潟市の賃貸売買情報をご紹介。
アパートマンション土地建物など不動産の事なら福寿興産へご相談下さい!
こんにちは(^.^)
本日は【新潟市西区寺尾東3 新築テナント】のご紹介です!
<ボヌール>
新潟市西区寺尾東3-3-14
平成20年12月初旬完成予定!
現在建築中
木造平屋建て
15坪(49.68㎡)
流し台・ウォシュレット付トイレ
事務所・店舗向き(飲食店不可)
賃料:105,000円(税抜)
敷金3ヶ月、礼金なし、管理費込み、駐車9台共同使用
詳細は福寿興産ホームページでご覧ください(^ ^)
http://www.fukuju-kosan.co.jp/cgi-bin/estate/search/search.cgi?mode=view&num=382
★おかげさまで残りあと1室となりましたm(_ _)m★
詳しい地図で見る
(有)福寿興産
新潟市西区寺尾2番6号
http://www.fukuju-kosan.co.jp/
http://ameblo.jp/fukujukosan/(ブログ→物件の情報ではないですが…)
info@fukuju-kosan.co.jp
025-267-6870
025-233-3753(fax)
新潟市の賃貸売買情報をご紹介。
アパートマンション土地建物など不動産の事なら福寿興産へご相談下さい!
本日は【新潟市西区寺尾東3 新築テナント】のご紹介です!
新潟市西区寺尾東3-3-14
平成20年12月初旬完成予定!
現在建築中
木造平屋建て
流し台・ウォシュレット付トイレ
事務所・店舗向き(飲食店不可)
賃料:105,000円(税抜)
敷金3ヶ月、礼金なし、管理費込み、駐車9台共同使用
詳細は福寿興産ホームページでご覧ください(^ ^)
http://www.fukuju-kosan.co.jp/cgi-bin/estate/search/search.cgi?mode=view&num=382
★おかげさまで残りあと1室となりましたm(_ _)m★
詳しい地図で見る
(有)福寿興産
新潟市西区寺尾2番6号
http://www.fukuju-kosan.co.jp/
http://ameblo.jp/fukujukosan/(ブログ→物件の情報ではないですが…)
info@fukuju-kosan.co.jp
025-267-6870
025-233-3753(fax)
新潟市の賃貸売買情報をご紹介。
アパートマンション土地建物など不動産の事なら福寿興産へご相談下さい!
カレンダー
| 12 | 2026/01 | 02 |
| S | M | T | W | T | F | S |
|---|---|---|---|---|---|---|
| 1 | 2 | 3 | ||||
| 4 | 5 | 6 | 7 | 8 | 9 | 10 |
| 11 | 12 | 13 | 14 | 15 | 16 | 17 |
| 18 | 19 | 20 | 21 | 22 | 23 | 24 |
| 25 | 26 | 27 | 28 | 29 | 30 | 31 |
プロフィール
HN:
【 株式会社 福寿興産 】
HP:
性別:
非公開
自己紹介:
新潟市西区寺尾の不動産屋です。アパートマンション土地建物など新潟市西区の不動産の事なら当社におまかせ下さい!!
〒950-2052
新潟市西区寺尾2番6号
TEL 025-267-6870
FAX 025-233-3753
メールはこちらから!
----------------------
----------------------
メルマガはこちらから
〒950-2052
新潟市西区寺尾2番6号
TEL 025-267-6870
FAX 025-233-3753
メールはこちらから!
----------------------
----------------------
メルマガはこちらから
ブログ内検索