[PR] オンラインゲーム Westside Realty Weblog <新潟市のアパートマンション不動産> 忍者ブログ
新潟市西区寺尾の『福寿興産』です(^-^)/  アパート・マンション・土地建物など最新の不動産物件情報をご紹介!!
×

[PR]上記の広告は3ヶ月以上新規記事投稿のないブログに表示されています。新しい記事を書く事で広告が消えます。

こんにちは(^-^)/

今日は久しぶりの雪模様。。。事務所のまわりも真っ白になりました(^o^)
寒いのですが、やっと冬らしくなった感じでちょっと安心しました。P1020177-s.jpg



でも降り過ぎは勘弁です(^^;)




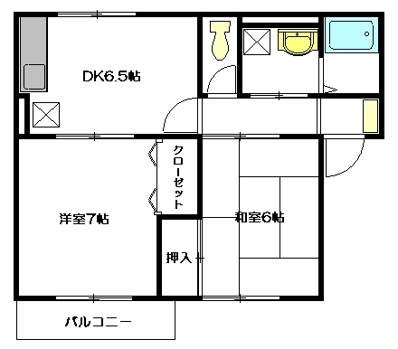
本日は【新潟市西区山田 2DK アパート】のご紹介です!
a3b82aabjpeg<シャドンフレール黒崎A>
新潟市西区山田2806-1

平成7年9月築
軽量鉄骨造


3dc4e833jpeg
2DK[洋室7帖、和室6帖、DK6.5帖]
賃料:57,000円[1F]
敷金2ヶ月、礼金なし、共益費2,000円、駐車料3,000円
都市ガス・バス・給湯・洗面化粧台・洋式トイレ(暖房便座)・
エアコン・インターホン


以前にご紹介したシャドンフレール黒崎Cの棟違いです。
広い敷地内にABCの3棟が建ち並んでいます。
山田小学校100m、黒崎インターも近く生活便利な立地となっています(^-^)/
詳細は福寿興産ホームページでどうぞ!
http://www.fukuju-kosan.co.jp/cgi-bin/estate/search/search.cgi?mode=view&num=297

========================================================
お問い合わせは…
(有)福寿興産
新潟市西区寺尾2番6号
http://www.fukuju-kosan.co.jp/
info@fukuju-kosan.co.jp
025-267-6870
025-233-3753(fax)
新潟市の賃貸売買情報をご紹介。
アパートマンション土地建物など不動産の事なら福寿興産へご相談下さい!

不動産物件を
貸したい方・借りたい方・売りたい方・買いたい方 ぜひ当社へ!!
メール、TEL:025-267-6870、福寿興産ホームページからどうぞ(^o^)



PR
こんにちは(^-^)/

本日は【新潟市西区寺尾東1 2K アパート】のご紹介です!

0ee4af6djpeg<レインボーハイツ2K>

新潟市西区寺尾東1丁目18-31
木造瓦葺2階建
平成元年築


ec92750bjpeg
2K[和室6帖、和室4帖、キッチン]

賃料:40,000円
敷金1ヶ月、礼金なし、管理費込み、駐車1台込み

賃料お手頃な2K物件です(^O^)Yエアコン新品が付きます。大堀幹線近く。


詳細は福寿興産ホームページでどうぞ!
http://www.fukuju-kosan.co.jp/cgi-bin/estate/search/search.cgi?mode=view&num=296
========================================================
お問い合わせは…
(有)福寿興産
新潟市西区寺尾2番6号
http://www.fukuju-kosan.co.jp/
info@fukuju-kosan.co.jp
025-267-6870
025-233-3753(fax)
新潟市の賃貸売買情報をご紹介。
アパートマンション土地建物など不動産の事なら福寿興産へご相談下さい!

不動産物件を
貸したい方・借りたい方・売りたい方・買いたい方 ぜひ当社へ!!
メール、TEL:025-267-6870、福寿興産ホームページからどうぞ(^o^)



こんにちは(^-^)/

本日は【新潟市西区山田 2DK  アパート】のご紹介です!
f6722b3bjpeg
<シャドンフレール黒崎C>
新潟市西区山田2806-1
軽量鉄骨造2階建
1995年9月築



e94ad07ajpeg2DK[洋室7.5帖、和室6帖、DK6]

賃料:56,000円[1F]
敷金2ヶ月、礼金なし、共益費2,000円、駐車1台3,000円
都市ガス、バス、洋式暖房便座、洗面化粧台、エアコン、
バルコニー、インターホン、駐輪場



山田小学校まで100m、黒崎インターまで車で3分と好立地!
詳細は福寿興産ホームページでどうぞ(^O^)Y
http://www.fukuju-kosan.co.jp/cgi-bin/estate/search/search.cgi?mode=view&num=295

========================================================
お問い合わせは…
(有)福寿興産
新潟市西区寺尾2番6号
http://www.fukuju-kosan.co.jp/
info@fukuju-kosan.co.jp
025-267-6870
025-233-3753(fax)
新潟市の賃貸売買情報をご紹介。
アパートマンション土地建物など不動産の事なら福寿興産へご相談下さい!

不動産物件を
貸したい方・借りたい方・売りたい方・買いたい方 ぜひ当社へ!!
メール、TEL:025-267-6870、福寿興産ホームページからどうぞ(^o^)



ブログデザインを変更して初の物件紹介です。。。
どんな感じでしょう??
内容は今までと全く変わっていませんが…
こんにちは!

新しい年を迎え、心新たにということでブログのデザインを変更してみました(^-^)/

今までは、背景が空の画像。
僕的には気に入っていたのですが、あるお方より「そろそろイイんじゃない?」とのお言葉(^^;)
実際、2年近く同じデザインでしたので気分転換も兼ねてデザインを変えてみましたー!

冬なので暖かな色を選んでみたつもりなのですが、イカガなものでしょう??
(シンプルすぎたかな。。。)
しかし、“ブログ”が普及し始めてまだ2~3年だったと思いますが、
色んなデザインがあるものですね。
すんごく凝っているものから、メチャクチャシンプルなものまで。。。すごいっ。

とりあえず今回はテンプレートを利用させて頂きました。
今年こそはオリジナルでブログをデザインしますっ!(!?)

========================================================
お問い合わせは…
(有)福寿興産
新潟市西区寺尾2番6号
http://www.fukuju-kosan.co.jp/
info@fukuju-kosan.co.jp
025-267-6870
025-233-3753(fax)
新潟市の賃貸売買情報をご紹介。
アパートマンション土地建物など不動産の事なら福寿興産へご相談下さい!

不動産物件を
貸したい方・借りたい方・売りたい方・買いたい方 ぜひ当社へ!!
メール、TEL:025-267-6870、福寿興産ホームページからどうぞ(^o^)



こんにちは(^^)Y

我が社は昨日が仕事始め。
→家族で経営している小さな会社なので、毎年冬休みも長いんです(^^ゞ

9日間も休みがあるからユックリ体を休められる~~!
な~んて思ったら大間違い(+_+)
遊び、遊び、遊び、遊び…遊びまくって、いつの間に過ぎ去った冬休み(^^;)
仕舞にはグッタ~リ(;_;)風邪まで引いてしまう始末(^^)
間違いなく、体の休養にはなりませんでした……(でも、心の休養にはなったかな~)

今年はブログ・メルマガともちょっとだけ、内容を濃い目にしようと思っています。
昨年までは物件紹介だけだったこのブログ、今年はもうちょっと皆様のお役に立てるような
情報を掲載していく予定(!?)です。。。(お役に立たない情報も満載する予定ですが(笑))


今年も宜しくお願い致します(^o^)

========================================================
お問い合わせは…
(有)福寿興産
新潟市西区寺尾2番6号
http://www.fukuju-kosan.co.jp/
info@fukuju-kosan.co.jp
025-267-6870
025-233-3753(fax)
新潟市の賃貸売買情報をご紹介。
アパートマンション土地建物など不動産の事なら福寿興産へご相談下さい!

不動産物件を
貸したい方・借りたい方・売りたい方・買いたい方 ぜひ当社へ!!
メール、TEL:025-267-6870、福寿興産ホームページからどうぞ(^o^)

カレンダー
12 2026/01 02
S M T W T F S
1 2 3
4 5 6 7 8 9 10
11 12 13 14 15 16 17
18 19 20 21 22 23 24
25 26 27 28 29 30 31
プロフィール
HN:
【 株式会社 福寿興産 】
性別:
非公開
自己紹介:
新潟市西区寺尾の不動産屋です。アパートマンション土地建物など新潟市西区の不動産の事なら当社におまかせ下さい!!

〒950-2052
新潟市西区寺尾2番6号
TEL 025-267-6870
FAX 025-233-3753

メールはこちらから!

----------------------



----------------------
メルマガはこちらから




バーコード
ブログ内検索

Copyright © [ Westside Realty Weblog <新潟市のアパートマンション不動産> ] All rights reserved.
Special Template : CSStemplate.shinobi.jp
Special thanks : 忍者ブログ
Commercial message : [PR]

SEO対策:新潟市 SEO対策:アパート SEO対策:不動産 SEO対策:マンション SEO対策:賃貸

リンクが自動増殖オートリンクの登録はこちら by オートリンクネット