[PR] オンラインゲーム Westside Realty Weblog <新潟市のアパートマンション不動産> 忍者ブログ
新潟市西区寺尾の『福寿興産』です(^-^)/  アパート・マンション・土地建物など最新の不動産物件情報をご紹介!!
×

[PR]上記の広告は3ヶ月以上新規記事投稿のないブログに表示されています。新しい記事を書く事で広告が消えます。

こんにちは(^-^)

本日は【新潟市西区寺尾東2 貸店舗】のご紹介です(^^)
5c2d3007jpeg
<ナカセイショップ>

新潟市西区寺尾東2丁目23-15
貸店舗
木造スレート葺2階建


09e03d92jpeg

13.38坪[約44.24㎡]
店舗+厨房

飲食店可能物件です!

賃料:70,000円、敷金2ヶ月、礼金なし



詳細は福寿興産ホームページでどうぞ!
http://www.fukuju-kosan.co.jp/cgi-bin/estate/search/search.cgi?mode=view&num=248
===================================================================
お問い合わせは…
(有)福寿興産
新潟市西区寺尾2番6号
http://www.fukuju-kosan.co.jp/
info@fukuju-kosan.co.jp
025-267-6870
025-233-3753(fax)
新潟市の賃貸売買情報をご紹介。
アパートマンション土地建物など不動産の事なら福寿興産へお問い合わせ下さい!

PR
こんにちは(^-^)/

秋ですね。
9/25は中秋の名月(^o^)満月の明るい夜でした…。。。
暑かった夏もやっと終わり、今朝は軽く肌寒いくらい(^^;)
まわりには風邪を引いている方がちらほらいらっしゃるようです(+_+)
気温の変化も激しい時期です。体調管理にはご注意を!!

本日は【新潟市西区小針藤山 1K アパート】のご紹介です(^-^)/
eed66334.jpg
<パークハウス>
新潟市西区小針藤山1-5
木造瓦葺2階建
昭和63年築



3d6f015e.jpg
1K[洋室8帖、キッチン]
プロパンガス・バス(シャワー付)・給湯・洋式トイレ
賃料:30,000円
敷金1ヶ月、礼金なし、管理費込み

青山水道遊園近くの物件です(゜∀゜)
JR越後線 小針駅徒歩4分。ジャスコ等にも近く、生活便利な立地ですよ!!
賃料もお手頃な設定となっています!

詳細は福寿興産ホームページでどうぞ(^o^)
http://www.fukuju-kosan.co.jp/cgi-bin/estate/search/search.cgi?mode=view&num=273
===================================================================
お問い合わせは…
(有)福寿興産
新潟市西区寺尾2番6号
http://www.fukuju-kosan.co.jp/
info@fukuju-kosan.co.jp
025-267-6870
025-233-3753(fax)
新潟市の賃貸売買情報をご紹介。
アパートマンション土地建物など不動産の事なら福寿興産へお問い合わせ下さい!


こんにちは(^_^)

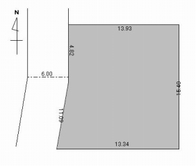
新潟市西区五十嵐2の町 売地 値下げのお知らせです!


8748c4e4jpeg新潟市西区五十嵐2の町8690-5
233.15㎡(70.52坪)
西側6m道路に接道
第1種低層住居専用地域
建ぺい率 50%
容積率 100%
地目:宅地 現況:更地

9f30b70ajpeg


ガス・水道宅地内引込済
総額:1,265万円 (坪18万)
→総額1,180万円(坪16.8万)に値下げ!!



新潟市西区五十嵐2の町の閑静な住宅街の中に立地する物件です!
70.52坪と広々。。。
庭で畑をしてみたり、ガレージを作ってみたり…敷地に余裕があるため色々デキソウですね!

詳細は福寿興産ホームページでどうぞ
http://www.fukuju-kosan.co.jp/cgi-bin/estate_v32/search/search.cgi?mode=view&group=1&data_num=132
===================================================================
お問い合わせは…
(有)福寿興産
新潟市西区寺尾2番6号
http://www.fukuju-kosan.co.jp/
info@fukuju-kosan.co.jp
025-267-6870
025-233-3753(fax)
新潟市の賃貸売買情報をご紹介。
アパートマンション土地建物など不動産の事なら福寿興産へお問い合わせ下さい!





こんにちは(^_^)

本日は【新潟市西区坂井1丁目 2LDK メゾネット】のご紹介(^-^)/
0d93bec0jpeg
<新潟市西区坂井1丁目メゾネット>
新潟市西区坂井1丁目3-5

木造瓦葺2階建 メゾネットタイプアパート
平成8年築


c9900be6jpeg
2LDK
[1F:LDK14 2F:洋室9帖、和室7帖]

賃料:60,000円
敷金1ヶ月、礼金なし、管理費込み、駐車2台込み
都市ガス・バス(シャワー付)・暖房便座・シャンプードレッサー・
対面キッチン・エアコン・バルコニー



詳細は福寿興産ホームページでどうぞ!
http://www.fukuju-kosan.co.jp/cgi-bin/estate/search/search.cgi?mode=view&num=272
===================================================================
お問い合わせは…
(有)福寿興産
新潟市西区寺尾2番6号
http://www.fukuju-kosan.co.jp/
info@fukuju-kosan.co.jp
025-267-6870
025-233-3753(fax)
新潟市の賃貸売買情報をご紹介。
アパートマンション土地建物など不動産の事なら福寿興産へお問い合わせ下さい!


総裁選に対する杉村太蔵議員の動きが話題になっていますね。

一般庶民の知らないところ決まってしまう、一国の代表。。。こんな事でいいのかなぁ。
総理大臣こそキチント総選挙で決めるべきだと思うのですが…。
そういうわけにはイカナイんですかね。。。



こんにちは( ^∀^)ノ

安倍首相辞任だそうですね。

本日は【新潟市西区小針が丘 1K アパート】のご紹介です(* ^ー゚)ノ
df878cc2jpeg
<ベリーハウス>
新潟市西区小針が丘1-18

木造瓦葺2階建
平成13年築


ad2d0467jpeg1K[洋室8帖、ロフト、キッチン]
賃料:40,000円
敷金1ヶ月、礼金なし、管理費込み、駐車1台3,000円
都市ガス・バス(シャワー付)・給湯・ウォシュレット付トイレ・
エアコン・ロフト・BS対応・バルコニー

JR越後線 小針駅目前の物件です!家賃もお手頃となっていますヨ ^∀^)ノ
詳細は福寿興産ホームページでどうぞ
http://www.fukuju-kosan.co.jp/cgi-bin/estate/search/search.cgi?mode=view&num=270
===================================================================
お問い合わせは…
(有)福寿興産
新潟市西区寺尾2番6号
http://www.fukuju-kosan.co.jp/
info@fukuju-kosan.co.jp
025-267-6870
025-233-3753(fax)
新潟市の賃貸売買情報をご紹介。
アパートマンション土地建物など不動産の事なら福寿興産へお問い合わせ下さい!


9.11NYの悲劇から6年(すでに1日過ぎてしまいましたが…)
私はあの日会社の飲み会でした…。
家路に辿りつき、TVを付けた瞬間に飛び込んできた映像…。
NYのシンボル的存在であったWTCが崩壊する瞬間、深い溜息を付いた事まで
鮮明に覚えています。。。
“このテロにプラスがあるの??人を殺す事が大義なの??”
あれから6年、世界ではまだまだ戦争だのナンだのと騒いでいますが、
そろそろ気付いても良いのでは??
あのテロで犠牲になった方々の思いをムダにしないように…。。。

カレンダー
12 2026/01 02
S M T W T F S
1 2 3
4 5 6 7 8 9 10
11 12 13 14 15 16 17
18 19 20 21 22 23 24
25 26 27 28 29 30 31
プロフィール
HN:
【 株式会社 福寿興産 】
性別:
非公開
自己紹介:
新潟市西区寺尾の不動産屋です。アパートマンション土地建物など新潟市西区の不動産の事なら当社におまかせ下さい!!

〒950-2052
新潟市西区寺尾2番6号
TEL 025-267-6870
FAX 025-233-3753

メールはこちらから!

----------------------



----------------------
メルマガはこちらから




バーコード
ブログ内検索

Copyright © [ Westside Realty Weblog <新潟市のアパートマンション不動産> ] All rights reserved.
Special Template : CSStemplate.shinobi.jp
Special thanks : 忍者ブログ
Commercial message : [PR]

SEO対策:新潟市 SEO対策:アパート SEO対策:不動産 SEO対策:マンション SEO対策:賃貸

リンクが自動増殖オートリンクの登録はこちら by オートリンクネット