新潟市西区寺尾の『福寿興産』です(^-^)/ アパート・マンション・土地建物など最新の不動産物件情報をご紹介!!
×
[PR]上記の広告は3ヶ月以上新規記事投稿のないブログに表示されています。新しい記事を書く事で広告が消えます。
こんにちは(^O^)
本日は【新潟市西区寺尾 15坪 テナント】のご紹介です!
新潟市西区寺尾10-33
『福田ビル 203号室』
鉄骨造2階建
平成4年11月築
JR越後線 寺尾駅 徒歩8分
即入居可能!!
約49.59㎡(15坪)
専用トイレ(洋式)・給湯室あり
賃料:60,000円(税別)
敷金1ヶ月、礼金なし、管理費込み
駐車5台可能(3,000円/台)
詳細は福寿興産ホームページでご覧下さい!
http://www.fukuju-kosan.co.jp/cgi-bin/estate/search/search.cgi?mode=view&num=537
大きな地図で見る
大きな地図で見る
(有)福寿興産
新潟市西区寺尾2番6号
http://www.fukuju-kosan.co.jp/
http://ameblo.jp/fukujukosan/(blog)
info@fukuju-kosan.co.jp
025-267-6870
025-233-3753(fax)
新潟市の賃貸売買情報をご紹介。
アパートマンション土地建物など不動産の事なら福寿興産へご相談下さい!
本日は【新潟市西区寺尾 15坪 テナント】のご紹介です!
『福田ビル 203号室』
鉄骨造2階建
平成4年11月築
JR越後線 寺尾駅 徒歩8分
即入居可能!!
専用トイレ(洋式)・給湯室あり
賃料:60,000円(税別)
敷金1ヶ月、礼金なし、管理費込み
駐車5台可能(3,000円/台)
詳細は福寿興産ホームページでご覧下さい!
http://www.fukuju-kosan.co.jp/cgi-bin/estate/search/search.cgi?mode=view&num=537
大きな地図で見る
大きな地図で見る
(有)福寿興産
新潟市西区寺尾2番6号
http://www.fukuju-kosan.co.jp/
http://ameblo.jp/fukujukosan/(blog)
info@fukuju-kosan.co.jp
025-267-6870
025-233-3753(fax)
新潟市の賃貸売買情報をご紹介。
アパートマンション土地建物など不動産の事なら福寿興産へご相談下さい!
PR
こんにちは!
本日は【新潟市西区寺尾 15坪 貸事務所】のご案内です!
『福田ビル203号』
新潟市西区寺尾10-33
鉄骨造亜鉛メッキ鋼板葺2階建
平成4年築
賃料:63,000円(税込)
敷金1ヶ月、礼金なし、管理費込み、駐車3,000円/台

49.58㎡(15坪)
エアコン・流し台・洋式トイレ付
旧116号沿いに立地するテナント!
事務所には最適(^O^)
詳細は福寿興産ホームページでご覧下さい!
http://www.fukuju-kosan.co.jp/cgi-bin/estate/search/search.cgi?mode=view&num=537
大きな地図で見る
(有)福寿興産
新潟市西区寺尾2番6号
http://www.fukuju-kosan.co.jp/
http://ameblo.jp/fukujukosan/(blog)
info@fukuju-kosan.co.jp
025-267-6870
025-233-3753(fax)
新潟市の賃貸売買情報をご紹介。
アパートマンション土地建物など不動産の事なら福寿興産へご相談下さい!
本日は【新潟市西区寺尾 15坪 貸事務所】のご案内です!
新潟市西区寺尾10-33
鉄骨造亜鉛メッキ鋼板葺2階建
平成4年築
賃料:63,000円(税込)
敷金1ヶ月、礼金なし、管理費込み、駐車3,000円/台
49.58㎡(15坪)
エアコン・流し台・洋式トイレ付
旧116号沿いに立地するテナント!
事務所には最適(^O^)
詳細は福寿興産ホームページでご覧下さい!
http://www.fukuju-kosan.co.jp/cgi-bin/estate/search/search.cgi?mode=view&num=537
大きな地図で見る
(有)福寿興産
新潟市西区寺尾2番6号
http://www.fukuju-kosan.co.jp/
http://ameblo.jp/fukujukosan/(blog)
info@fukuju-kosan.co.jp
025-267-6870
025-233-3753(fax)
新潟市の賃貸売買情報をご紹介。
アパートマンション土地建物など不動産の事なら福寿興産へご相談下さい!
こんにちは(^O^)
本日は【新潟市西区寺尾台2 テナント】のご紹介です!
新潟市西区寺尾台2-4-46
昭和54年築
鉄骨造亜鉛メッキ鋼板葺平屋建
飲食店可
約23.80坪(78.66㎡)
JR寺尾駅 徒歩8分
賃料:150,000円(税別)
敷金:1ヶ月、礼金なし、管理費なし、駐車込み(共同使用)
西大通り(旧R116)近く。スナック・居酒屋向!
飲食店可能物件です!
詳細は福寿興産ホームページでご覧下さい(^o^)/
http://www.fukuju-kosan.co.jp/cgi-bin/estate/search/search.cgi?mode=view&num=528
大きな地図で見る
(有)福寿興産
新潟市西区寺尾2番6号
http://www.fukuju-kosan.co.jp/
http://ameblo.jp/fukujukosan/(blog)
info@fukuju-kosan.co.jp
025-267-6870
025-233-3753(fax)
新潟市の賃貸売買情報をご紹介。
アパートマンション土地建物など不動産の事なら福寿興産へご相談下さい!
本日は【新潟市西区寺尾台2 テナント】のご紹介です!
昭和54年築
鉄骨造亜鉛メッキ鋼板葺平屋建
飲食店可
約23.80坪(78.66㎡)
JR寺尾駅 徒歩8分
敷金:1ヶ月、礼金なし、管理費なし、駐車込み(共同使用)
西大通り(旧R116)近く。スナック・居酒屋向!
飲食店可能物件です!
詳細は福寿興産ホームページでご覧下さい(^o^)/
http://www.fukuju-kosan.co.jp/cgi-bin/estate/search/search.cgi?mode=view&num=528
大きな地図で見る
(有)福寿興産
新潟市西区寺尾2番6号
http://www.fukuju-kosan.co.jp/
http://ameblo.jp/fukujukosan/(blog)
info@fukuju-kosan.co.jp
025-267-6870
025-233-3753(fax)
新潟市の賃貸売買情報をご紹介。
アパートマンション土地建物など不動産の事なら福寿興産へご相談下さい!
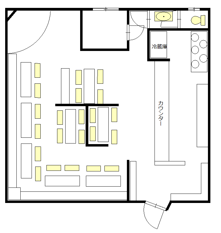
こんにちは(^O^)
本日は【新潟市西区寺尾 27坪 テナント】のご紹介です!
新潟市西区寺尾10-33
『福田ビル201号室』
鉄骨造2階建て
平成4年11月築
新潟亀田・内野線(旧116号線)沿い
JR寺尾駅 徒歩7分
27坪(約89.25㎡) 流し台・トイレ付
賃料:100,000円(税別)
敷金1ヶ月、礼金なし、管理・共益費込み
駐車料:3,000円/台
旧R116沿いの貸事務所です!!
27坪の広々としたテナントとなります。
お問い合わせは TEL 025-267-6870 または info@fukuju-kosan.co.jp まで
詳細は福寿興産ホームページでどうぞ!
http://www.fukuju-kosan.co.jp/cgi-bin/estate/search/search.cgi?mode=view&num=425
大きな地図で見る
(有)福寿興産
新潟市西区寺尾2番6号
http://www.fukuju-kosan.co.jp/
http://ameblo.jp/fukujukosan/(blog)
info@fukuju-kosan.co.jp
025-267-6870
025-233-3753(fax)
新潟市の賃貸売買情報をご紹介。
アパートマンション土地建物など不動産の事なら福寿興産へご相談下さい!
不動産物件を
貸したい方・借りたい方・売りたい方・買いたい方 ぜひ当社へ!!
メール、TEL:025-267-6870、福寿興産ホームページからどうぞ(^o^)
本日は【新潟市西区寺尾 27坪 テナント】のご紹介です!
『福田ビル201号室』
鉄骨造2階建て
平成4年11月築
新潟亀田・内野線(旧116号線)沿い
JR寺尾駅 徒歩7分
賃料:100,000円(税別)
敷金1ヶ月、礼金なし、管理・共益費込み
駐車料:3,000円/台
旧R116沿いの貸事務所です!!
27坪の広々としたテナントとなります。
お問い合わせは TEL 025-267-6870 または info@fukuju-kosan.co.jp まで
詳細は福寿興産ホームページでどうぞ!
http://www.fukuju-kosan.co.jp/cgi-bin/estate/search/search.cgi?mode=view&num=425
大きな地図で見る
(有)福寿興産
新潟市西区寺尾2番6号
http://www.fukuju-kosan.co.jp/
http://ameblo.jp/fukujukosan/(blog)
info@fukuju-kosan.co.jp
025-267-6870
025-233-3753(fax)
新潟市の賃貸売買情報をご紹介。
アパートマンション土地建物など不動産の事なら福寿興産へご相談下さい!
不動産物件を
貸したい方・借りたい方・売りたい方・買いたい方 ぜひ当社へ!!
メール、TEL:025-267-6870、福寿興産ホームページからどうぞ(^o^)
こんにちは(^O^)
本日は【新潟市西区小新西3 テナント】のご紹介です!
新潟市西区小新西3丁目10-12
『パレオⅢ テナント』
平成6年築
木造瓦葺2階建て
賃料:72,000円
敷金2ヶ月、礼金なし、駐車2台込
12.2坪 [ 約40.33㎡ ]
流し台・エアコン・トイレ付
街路樹の立並ぶ広い歩道に面した物件です。
貸店舗・貸事務所ともに可能となっています(^o^)/


詳細は福寿興産ホームページでご覧ください!
http://www.fukuju-kosan.co.jp/cgi-bin/estate/search/search.cgi?mode=view&num=451
大きな地図で見る
(有)福寿興産
新潟市西区寺尾2番6号
http://www.fukuju-kosan.co.jp/
http://ameblo.jp/fukujukosan/
info@fukuju-kosan.co.jp
025-267-6870
025-233-3753(fax)
新潟市の賃貸売買情報をご紹介。
アパートマンション土地建物など不動産の事なら福寿興産へご相談下さい!
本日は【新潟市西区小新西3 テナント】のご紹介です!
『パレオⅢ テナント』
平成6年築
木造瓦葺2階建て
賃料:72,000円
敷金2ヶ月、礼金なし、駐車2台込
12.2坪 [ 約40.33㎡ ]
流し台・エアコン・トイレ付
街路樹の立並ぶ広い歩道に面した物件です。
貸店舗・貸事務所ともに可能となっています(^o^)/
詳細は福寿興産ホームページでご覧ください!
http://www.fukuju-kosan.co.jp/cgi-bin/estate/search/search.cgi?mode=view&num=451
大きな地図で見る
(有)福寿興産
新潟市西区寺尾2番6号
http://www.fukuju-kosan.co.jp/
http://ameblo.jp/fukujukosan/
info@fukuju-kosan.co.jp
025-267-6870
025-233-3753(fax)
新潟市の賃貸売買情報をご紹介。
アパートマンション土地建物など不動産の事なら福寿興産へご相談下さい!
カレンダー
| 03 | 2026/04 | 05 |
| S | M | T | W | T | F | S |
|---|---|---|---|---|---|---|
| 1 | 2 | 3 | 4 | |||
| 5 | 6 | 7 | 8 | 9 | 10 | 11 |
| 12 | 13 | 14 | 15 | 16 | 17 | 18 |
| 19 | 20 | 21 | 22 | 23 | 24 | 25 |
| 26 | 27 | 28 | 29 | 30 |
プロフィール
HN:
【 株式会社 福寿興産 】
HP:
性別:
非公開
自己紹介:
新潟市西区寺尾の不動産屋です。アパートマンション土地建物など新潟市西区の不動産の事なら当社におまかせ下さい!!
〒950-2052
新潟市西区寺尾2番6号
TEL 025-267-6870
FAX 025-233-3753
メールはこちらから!
----------------------
----------------------
メルマガはこちらから
〒950-2052
新潟市西区寺尾2番6号
TEL 025-267-6870
FAX 025-233-3753
メールはこちらから!
----------------------
----------------------
メルマガはこちらから
ブログ内検索